Nov objekt Vodice

1 Kreveti
1 Kupke
Godina Izgradnje: 2025

Overview

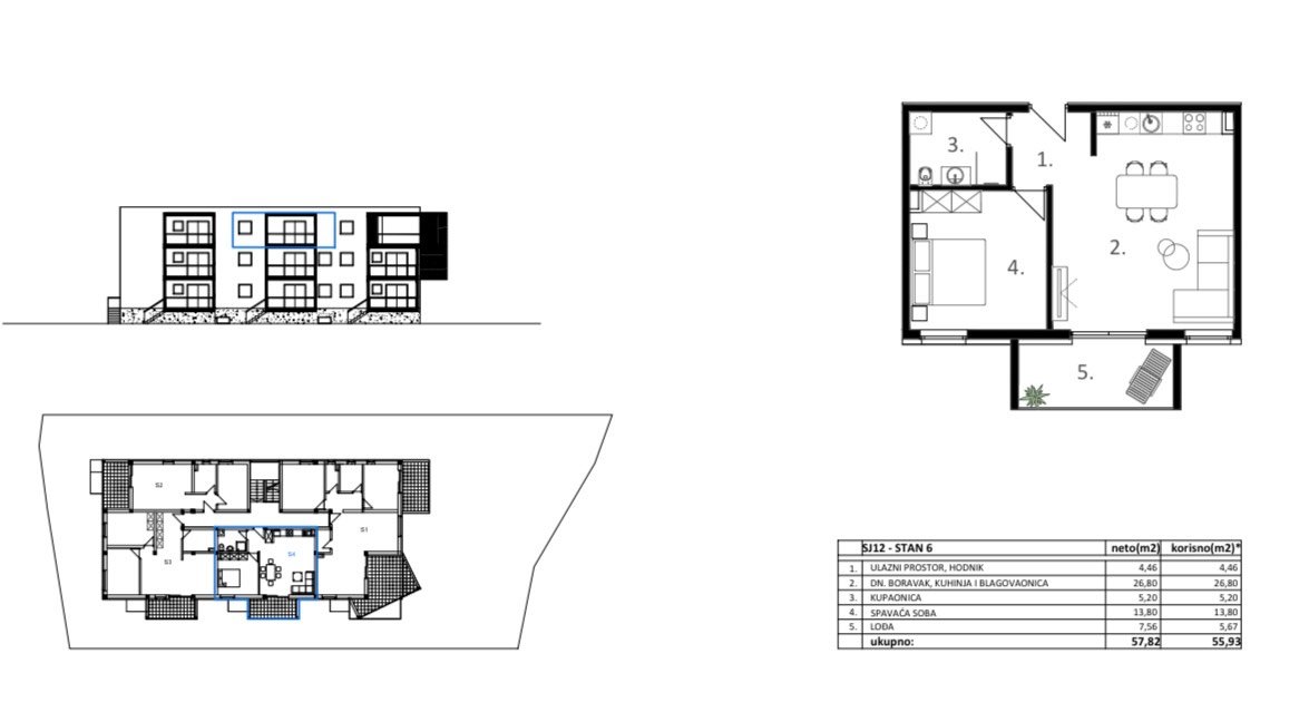
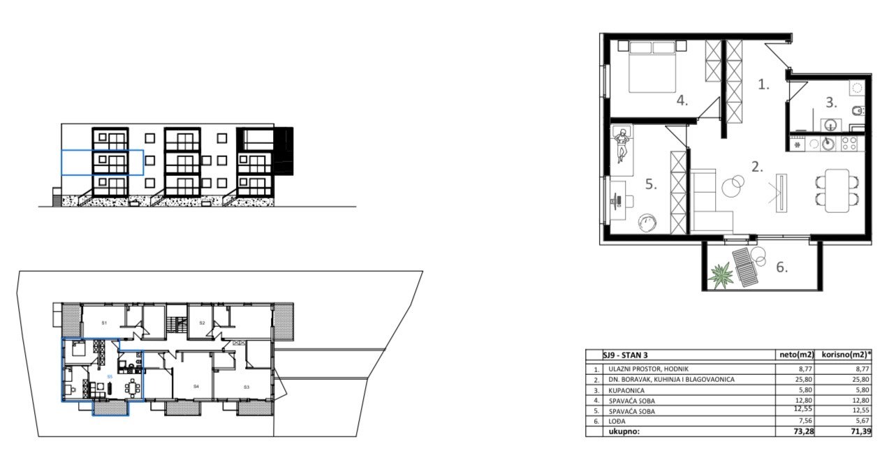
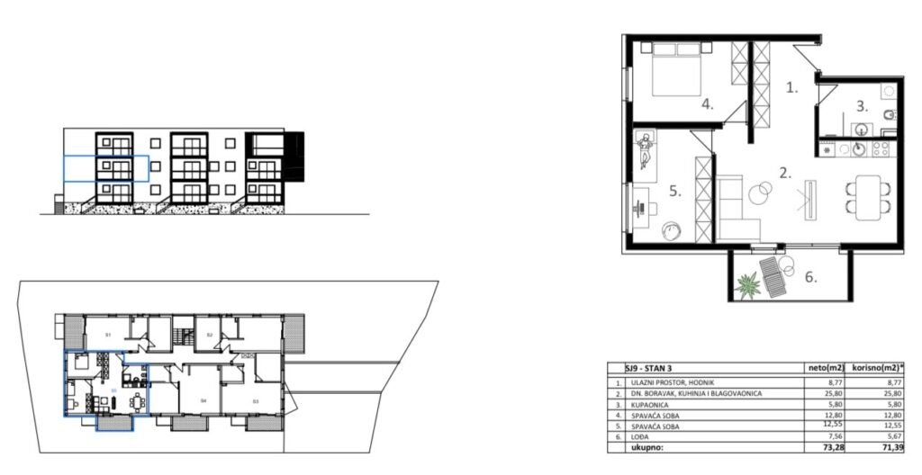
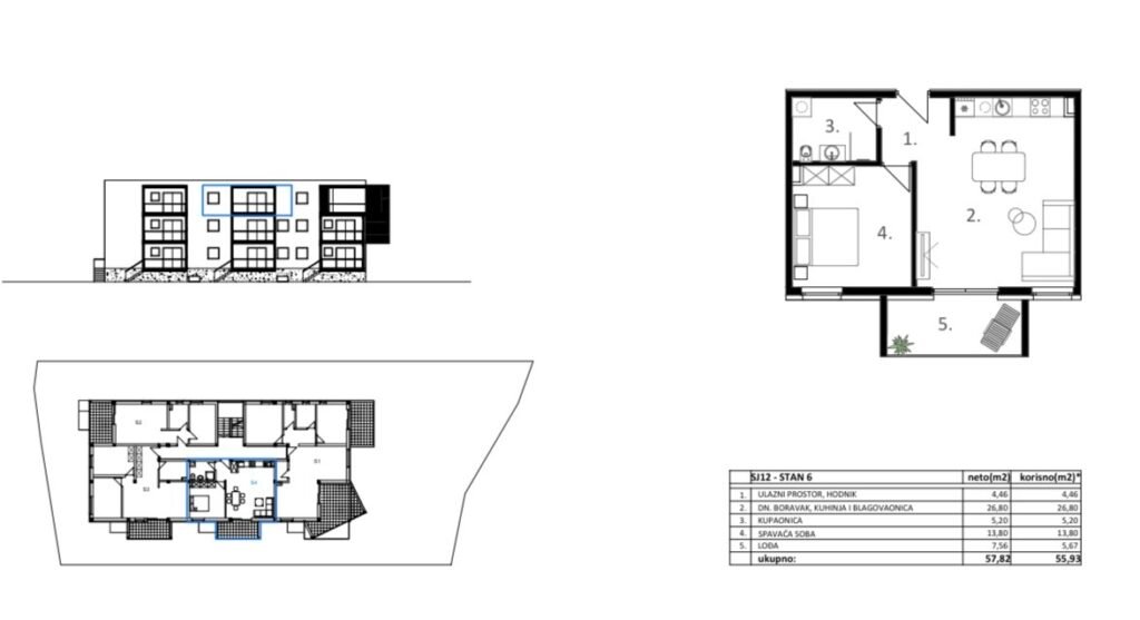
I sell 14 units in a new building in Vodice. The apartments and flats are one and two-bedroom units.
The units range in size from 41 m2 to 102 m2 of usable space. The units have a garden, a balcony, and a parking space. The building is currently under construction and will be completed by the end of 2026.
The apartments are sold turn-key. The property is located just 600 meters from the beach, the center-waterfront, marina.In this ad, I am currently advertising a one-bedroom apartment on the ground floor.
The property has a garage, ground floor, 1st floor and 2nd floor. Prices are from 150.000 € till 390.000€. For more information, please call, for offers and main informations about other apartments text
me on : marketing@arch.si

Details

  • Sobe:
    1
  • Kreveti:
    1
  • Kupke:
    1
  • Godina Izgradnje:
    2025
  • Nekretnina za:

Features

  • Centralno grijanje

Schedule A Tour

Your Information
70000
Monthly
  • Principal & Interest
  • Property Tax
  • Home Insurance

Google Nearby Places